New Afrikaans medium junior high school, Berglaan, Pretoria North
Loading...
Date
Authors
Eaton, Norman, 1902-1966
Journal Title
Journal ISSN
Volume Title
Publisher
Abstract
Description
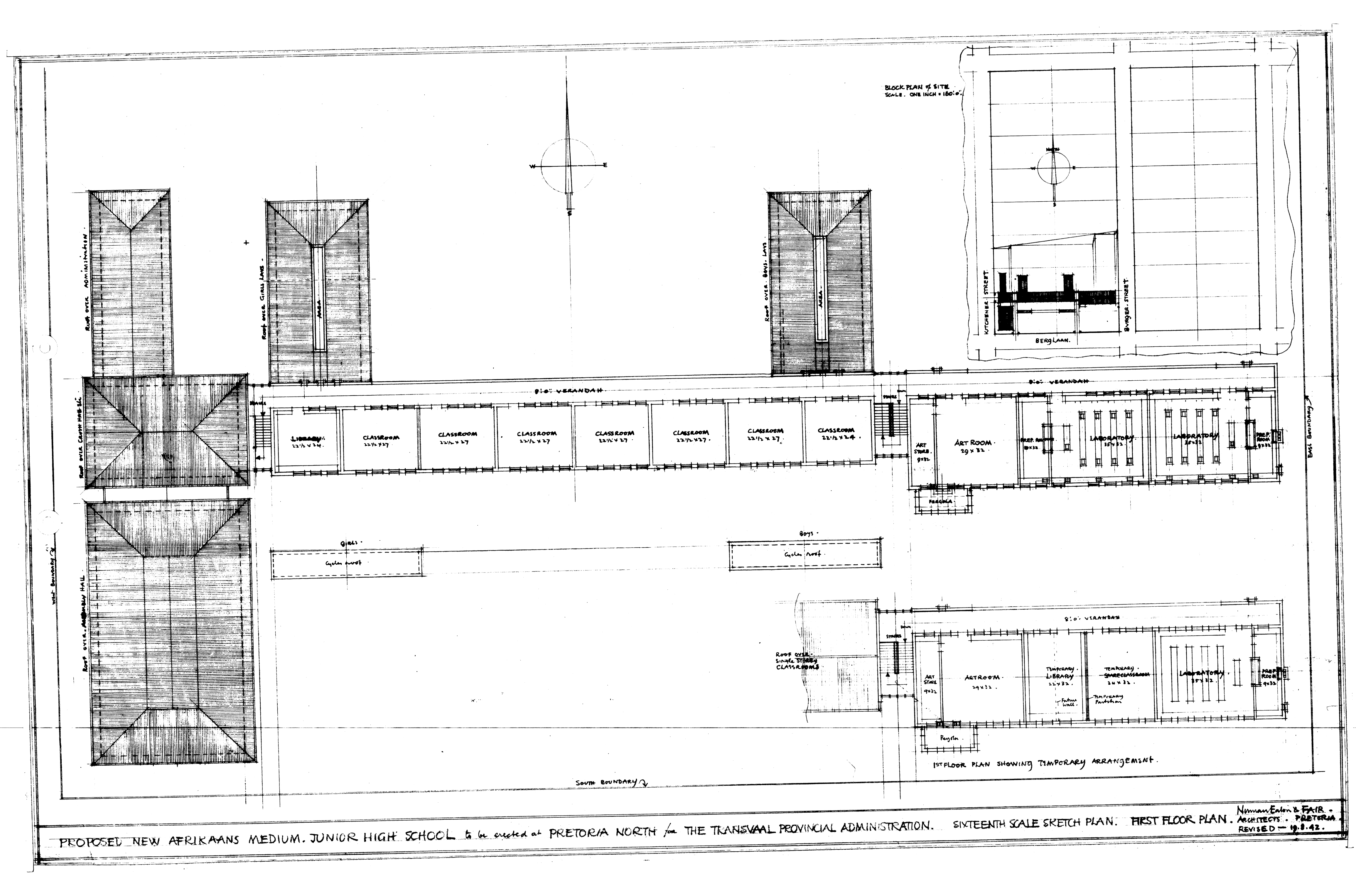
Ground plan, first floor plan and elevations of the new Afrikaans medium junior high school for the Transvaal Provincial Administration, Berglaan, Pretoria North.
600 dpi TIFF scans reduced to 150 dpi JPEG images
600 dpi TIFF scans reduced to 150 dpi JPEG images
Keywords
Architectural designs, Architectural drawings, School architecture
