Proposed stinkwood table and chair to be presented to gen. J.C. Smuts
| dc.contributor.author | Eaton, Norman, 1902-1966 | en_US |
| dc.coverage.temporal | AD | en_US |
| dc.coverage.temporal | 20th century | en-US |
| dc.date.accessioned | 2013-12-18T09:43:03Z | |
| dc.date.available | 2013-12-18T09:43:03Z | |
| dc.date.created | 1934 | |
| dc.date.issued | 2013-12-18 | |
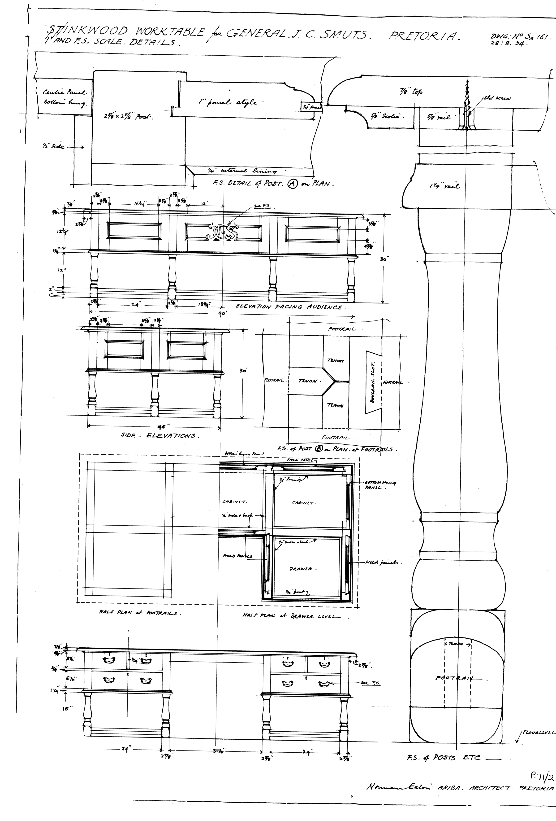
| dc.description | Detailed drawings of a stinkwood table and chair to be presented to General J.C. Smuts by the South African Party, Transvaal | en_US |
| dc.description.librarian | pm2013-12 | en_US |
| dc.format.extent | 600 dpi TIFF scans reduced to 150 dpi JPEG images | en_US |
| dc.format.medium | JPEG | en_US |
| dc.identifier.uri | http://hdl.handle.net/2263/32936 | |
| dc.language.iso | en | en_US |
| dc.rights | Complies with rights as specified by Collection Administrator | en_US |
| dc.subject | Furniture designs | en_US |
| dc.subject.ddc | 749 | |
| dc.subject.lcsh | Furniture design | en_US |
| dc.subject.lcsh | Furniture -- Drawings | en_US |
| dc.title | Proposed stinkwood table and chair to be presented to gen. J.C. Smuts | en_US |
| dc.type | Plan or blueprint | en_US |
Files
Original bundle
1 - 3 of 3
Loading...
- Name:
- 07913-01s.jpg
- Size:
- 1.15 MB
- Format:
- Joint Photographic Experts Group/JPEG File Interchange Format (JFIF)
- Description:
- Stinkwood table and chair
Loading...
- Name:
- 07913-02s.jpg
- Size:
- 1.44 MB
- Format:
- Joint Photographic Experts Group/JPEG File Interchange Format (JFIF)
- Description:
- Stinkwood worktable detail
Loading...
- Name:
- 07913-3s.jpg
- Size:
- 1.42 MB
- Format:
- Joint Photographic Experts Group/JPEG File Interchange Format (JFIF)
- Description:
- Detail
License bundle
1 - 1 of 1
Loading...
- Name:
- license.txt
- Size:
- 1.71 KB
- Format:
- Item-specific license agreed upon to submission
- Description:
